2DP 101
2DP 101 uses a platform that is driven upwards and downwards. A car is parked on the platform when it is at the ground level. When driven upwards to its peak level, another car can be parked below the platform.
2DP 101 uses a platform that is driven upwards and downwards. A car is parked on the platform when it is at the ground level. When driven upwards to its peak level, another car can be parked below the platform.
Loading Capacity: 2000 kgs per car
Drive: Hydraulic
Coating: Sand blasted, Epoxy Painted System. Hot Dip Galvanized platforms
Power Pack: 3 phase Induction Motor - 3 HP
Vertical: 2000 kgs
Horizontal: 700 kgs
Incoming Supply: 3 phase, 50 Hz, 415 volts AC with Neutral and Earthing to each powerpack
Switchgear: 4 pole, 63 amps MCB for each powerpack
Cable from main switch to MCB: 4 core, 2.5 sq mm, armored Copper cable with a separate earth wire
| Height Available (H) | 3200 | 3300 | 3400 | 3500 | 3600 | 3700 | 3800 | 3900 | 4000 | 4100 | 4200 |
| Upper Car Height (G+1) | 1500 | 1500 | 1500 | 1500 | 1500 | 1500 | 1600 | 1700 | 1800 | 1900 | 2000 |
| Lower Car Height (G) | 1600 | 1700 | 1800 | 1900 | 2000 | 2000 | 2000 | 2000 | 2000 | 2000 |
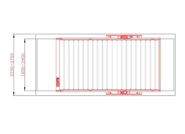
| Platform Width(w) | 1900 (min) | 2400 (max) |
| Total Width Required | (W+350) | |
| Total Available Length | 3900 (min) | 5500 (max) |
| Platform Length | 3800 (standard) | |
| Car Length | Total Available Length-100 | |