x
N N I T

Hide Park - 1HI

Hide Park 11H

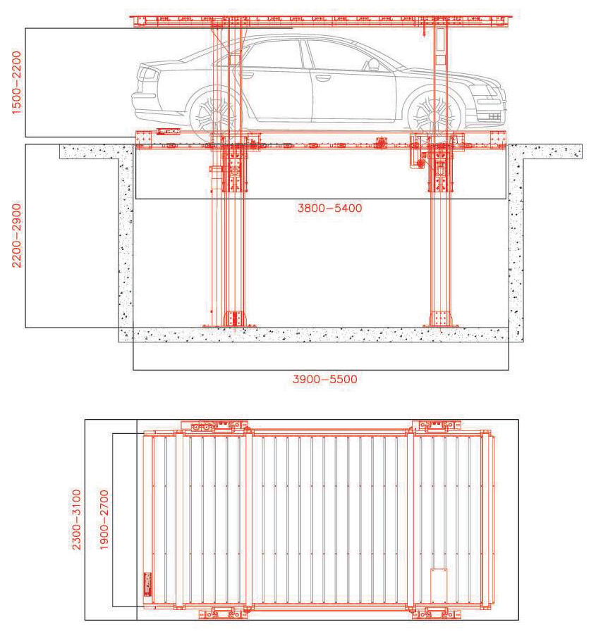
Hide Park 11H uses a platform that is driven upwards and downwards. A dummy platform is placed over the top of the 1st platform while tiling can be done or turf can be installed on the dummy platform. Cars can be parked on the 1st platform when they are driven upwards to the ground level. When driven back to its original position, a car can be parked on the dummy platform.

CAR DIAMENSION TABLE
  • Height Details

  • Width Details

  • Length Details

Pit Depth (PD) 2400 2500 2600 2700 2800 2900
Pit 1 Car Height (P1) 1500 1600 1700 1800 1900 2000
Min Height Required (H) 1800 1900 2000 2100 2200 2300
Platform Width (w) 1900 (min) 2700 (max)
Total Width Required (W+400)
Total Available Length 3900 (min) 5500 (max)
Platform Length Total Available Length-100
Car Length Total Available Length-200
Go To Top